沥青摊铺机摊铺厚度的调节是通过改变熨平板仰角α的大小实现的,摊铺作业时应保持仰角α不变。仰角α增加将加大摊铺层厚度,反之减小。仰角α的调节,可利用熨平板的调节螺栓使熨平板绕大臂上的铰点转动一个角度,以改变熨平板底面与水平面的夹角;还可通过调节大臂牵引点的高度以改变熨平板底面与水平面的夹角。
液压式熨平板加宽节段有两种布置方式:一种是布置在主熨平板的前面,如图1所示。当伸缩式熨平板缩进至与主熨平板前后完全重叠时,就成为串联式熨平板,可对铺层起二次整形与振实作用。此时两侧熨平板侧壁挡住螺旋摊铺器的两外端,使该处形成摊铺室。当伸缩式熨平板向外伸出时,由于螺旋摊铺器的长度不变,供料只能到达摊铺器的两端头,以后则是依靠后续料将其向外推,直到应铺的宽度。

图1 伸缩式熨平板在主熨平板之前
1.主熨平板 2.伸缩式熨平板 3.导板 4.螺旋摊铺器 5.熨平板侧壁
另一种是伸缩式熨平板布置在主熨平板的后面,如图2所示。该图是三一重工生产的SAP90型摊铺机伸缩式熨平板的布置方案。通过伸缩式导管4和液压缸进行无级伸缩。当伸缩式熨平板5全部缩进时,主熨平板2的标准宽度为2.5m,全部伸出时的宽度为 2.5m,全部伸出时的宽度为4.75m。如摊铺宽度还需增大,可采用加宽熨平板6,这样未伸出时宽度变成3.75m,如全部伸出最大宽度可达6m。

图2 伸缩式熨平板布置在主熨平板之后
a.标砖宽度 b.伸缩式平板全部伸出的宽度 c.加宽熨平板未伸出时的宽度 d.加宽熨平板全部伸出时的宽度
1.主螺旋摊铺器 2.主熨平板 3.螺旋加长节段 4.伸缩式导管 5.伸缩式熨平板
6.加宽式熨平板 7.熨平板侧壁
由于伸缩式熨平板是沿导管伸缩,为了防止它发生扭转专门安装了锁死装置。
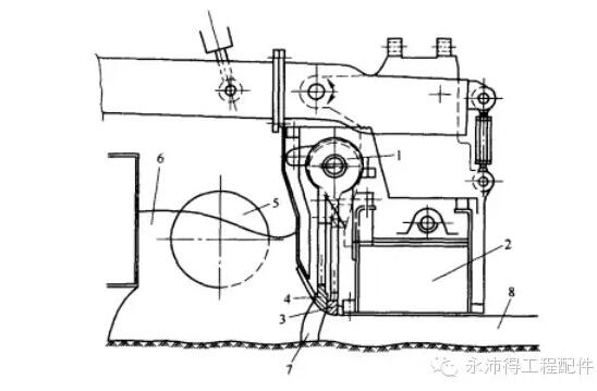
为了提高沥青混凝土路面的铺设质量,目前沥青摊铺机上还采用了双振捣梁-单振动熨平板结构,如图3所示。这种结构是在主振捣梁之前加装了一根预振捣梁,两根振捣梁悬挂在同一根偏心轴上,偏心相差180°相位,两梁的振幅能各自独立地调整。预振捣梁的调整范围为0~12mm,主振捣梁的调整范围为8~9mm。通过组合两梁不同的捣固速度和振动熨平板的振动频率,可适用于不同铺层厚度和不同种类沥青混凝土的压实。

图3 双振捣梁-单振动熨平板结构
1.偏心轴 2.振动熨平板 3.主振捣梁 4.预振捣梁 5.螺旋摊铺器
6.未被捣固的混凝土 7.被捣固的混凝土 8.已熨平成形的混凝土路面